NEXT AUCTION: 17th March → Register to bid
5 Bouverie Place, London, W2 1RB. Sold
4 2
- SOLD FOR £1,310,000
- Arranged over four floors
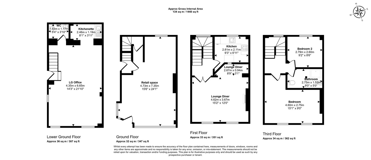
- Circa 1500 square feet
- Enquiries, contact Robert Jenkins
- Freehold
- Vacant Possession
- Excellent Location
- Full Auction Legal Pack Available Upon Request
- Future opportunities for various development, subject to all necessary consents
- Prospective purchasers must rely solely on their own enquiries
Description
DESCRIPTION:
A very rare opportunity to purchase a mixed use freehold property in a highly desirable part of the capital. Future opportunities for various development, subject to all necessary consents. There is an opportunity for the incoming purchaser to seek change of use for the commercial element to residential. Allowing for the property to be transformed back to its former glory as a quintessential London townhouse. Prospective purchasers must rely solely on their own enquiries.
ACCOMMODATION:
The property is arranged over four floors. Circa 1500 square feet The ground floor and lower ground floor provide A1/ A2 use with a shop front. The residential accommodation over the first and second floors levels are extensive with private access from St Michaels Street. Sold with vacant possession. The property has development potential subject to all necessary consents.
LOCATION:
London's Paddington neighbourhood offers a balance of city buzz and lush green spaces. Whether you're enjoying the eclectic mix of restaurants and cafes, gazing at narrow boats floating in Little Venice, or meandering through the stylish new architecture of Paddington Basin.
TENURE:
Freehold.
AUCTION DATE:
Connect Realtime® Bidding commences at 12pm with closing bids at 1pm, Friday 20th June 2025.
The Lot is for sale via Traditional Auction. This is a timed auction, which requires both parties to complete the transaction within the completion date as per the auction legal pack. The buyer, is required to register, with Connect UK Auctions, in order to participate and will be required to go through, identification verification process. The auction Legal Pack, is available by request. You are required to complete your own due diligence prior to bidding. The Lot is subject to an undisclosed Reserve Price. The Reserve Price and Starting Bid being subject to change.
UNCONDITIONAL LOT:
Auction Fees apply, upon the fall of the gavel, as per the auction legal pack. The highest bidder, will also pay a deposit of 10% of the hammer price and contracts are exchanged. The purchaser is legally bound to buy and the vendor is legally bound to sell the Property/Lot. The auction conditions require a full legal completion 28 or 42 days following the day of auction (unless a longer completion period is requested and agreed with Connect uk Auctions).
Reference: CCM-35604230
Additional Features
Virtual Tours
Map
Make an enquiry / Request legal pack
To make an enquiry for this property, please call us on 0800 448 0100, or complete the form below. If a legal pack is available for this lot, it will be automatically emailed to you.
